Property Details
Basic Information
- Property Type: Residential
- HCBOR: 1002163
- Mls Status : Active
- Acreage: 2.45
Building
- Property Style: Cabin, Log Home
- Year Built: 2008
- Roof: Metal
- Building Construction: Log, Stone
Location
- Town: Franklin
- County: Macon
- State: NC
- Zip: 28734
Finance
- Taxes: $1,923
Water
- Water Access: See Remarks, Well
Interior Features
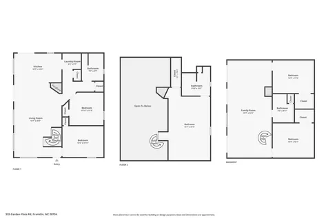
Bedrooms
- Bedrooms: 3
Bathrooms
- Bathrooms: 3
- Full Baths: 3
Other
- Fireplace: Yes
- Fireplace Features : Gas Log, Living Room, Primary Bedroom, Propane, Stone
Utilities and Appliances
Utilities and Appliances
- Appliances Included: Dryer, Dishwasher, Electric Range, Microwave, Refrigerator, Washer
- Cooling : Central Air, Electric, Heat Pump
- Water Access: See Remarks, Well
- Heat System: Electric, Gas, Heat Pump, Zoned
Community
Area
- Subdivision: Garden Branch


















































































"Based on information submitted to HCBOR as of November 9, 2025 5:13 PM EST. All data is deemed reliable but is not guaranteed accurate by the MLS. All information should be independently reviewed and verified for accuracy. IDX information is provided exclusively for consumers’ personal, noncommercial use and may not be used for any purpose other than to identify prospective properties consumers may be interested in purchasing."